Hertshooistraat 12

Hertshooistraat 12

ROTTERDAM

vraagprijs

verkocht

Ook uw woning of bedrijfspand succesvol verkopen? Neem dan contactmet ons op

Gratis waardebepaling

Omschrijving

Leuke energiezuinige woning in Nieuw-Terbregge! Deze 4-kamer eengezinswoning ligt aan een singel met vrij uitzicht, heeft een ruime tuin, berging en achterom. Maak een afspraak om deze woning te bezichtigen!

Indeling:

Entree, hal, meterkast, toilet met fonteintje, tuingerichte woonkamer met laminaatvloer, bergkast en openslaande deuren naar tuin, keuken met vaatwasser, koelkast, magnetron, vriezer, oven, 5-pits gaskookplaat, afzuigschouw en openslaande deuren naar 'voortuintje'.

1e verdieping: Overloop, grote kast met droger/wasmachine-aansluiting, CV-opstelling en WTW-systeem, slaapkamer I met hoog plafond, slaapkamer II en III aan achterzijde, alle slaapkamers en hal v.v. een laminaatvloer, badkamer met ligbad en wastafel.


Overige informatie:

-Erfpacht afgekocht t/m 20-05-2100, einddatum 20-05-2100
-Bouwjaar 2003
-Energielabel A
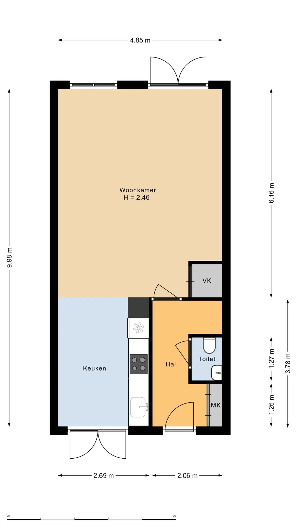
-Voor maten, zie plattegrond
-Zgn. “Duurzaam” gebouwd huis (volledig geïsoleerd, energiezuinig/geen milieubelastende materialen gebruikt)
-Kindvriendelijke wijk/veel speelvoorzieningen/groen
-Ruime tuin op N-O met grote houten berging en achterom
-CV-combiketel uit 2020, WTW-systeem
-Oplevering in overleg


Bakker & Steffen behartigt de belangen van de verkopende partij. Neem uw eigen NVM-aankoopmakelaar mee.

Alle verstrekte informatie moet beschouwd worden als een uitnodiging tot het doen van een bod of om in
onderhandeling te treden. Er kunnen geen rechten worden ontleend aan deze woninginformatie.
Lees meer

Kenmerken

Overdracht

Status
verkocht
Aanvaarding
in overleg

Bouw

Soort woning
woonhuis
Soort woonhuis
eengezinswoning
Type woonhuis
tussenwoning
Aantal woonlagen
2
Bouwjaar
2003
Onderhoud binnen
goed
Onderhoud buiten
goed
Voorzieningen
tv kabel, balansventilatie
Isolatie
volledig geisoleerd

Energie

Energielabel
A
Verwarming
cv ketel, warmte terugwininstallatie
Warm water
cv ketel
C.V.-ketel
gas gestookte combi-ketel uit 2019 van Ferroli Blue Sense, eigendom

Oppervlakten en inhoud

Woonoppervlakte
97 m²
Perceeloppervlakte
115 m²
Inhoud
310 m³
Bergruimte oppervlakte
7 m²

Indeling

Aantal kamers
4

Buitenruimte

Tuin
achtertuin met een oppervlakte van 50 m² en is gelegen op het noorden

Bergruimte

Garage
geen garage
Parkeergelegenheid
openbaar parkeren
Schuur/berging
vrijstaand hout

Foto's

Plattegronden

Locatie

Vraag een bezichtiging aan of neem contact met ons op.